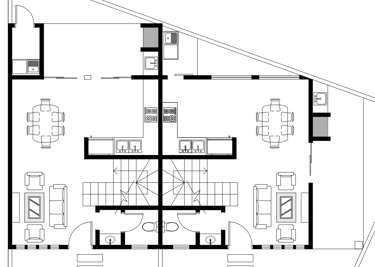
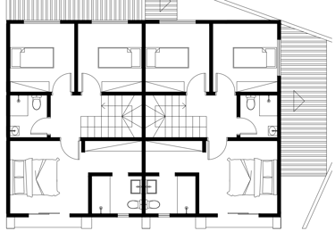
Dúplex 12A
Dúplex moderno y funcional, listo para habitar o invertir. Consta de 3 dormitorios (1 en suite) cochera doble, espacios integrados y luminosos, quincho con conexión a la cocina, una nueva obra finalizada, pensada para quienes buscan seguridad, rentabilidad y diseño contemporáneo.
San Lorenzo, Capilla del monte - Agosto 2025 - 105,20 m2 (Por unidad)






















































PG Constructora
Servicios de construcción y diseño a medida.
Contacto
info@pgconstructora.com
+595 983 000 294
© 2015 PG Constructora. · Todos los derechos reservados · Asunción, Paraguay
Mayor Francisco Vargas 550 e/ Ing. Hernando Bertoni y Sgto. Manuel Pisciota.
Bo. Mburukujá, Asunción - Paraguay
+595 981 100 601
